第一节 产品技术发展现状
目前,汽车发动机(尤其是汽油发动机)的传动轮系,普遍可分为橡胶皮带传动和无声链传动两大系统。在一般车型中,橡胶皮带的传动较为常见,这种传动方式具有大功率、高效传递的特点,且因皮带的可弯曲度大,而使有效空间中传动路径长,进而带动更多附件,从而简化传动机构。再次,随着橡胶工业、机械基础件 行业 质量水平的不断提高,这种带传动的免维护和低噪声的环保特性,越来越受到人们的欢迎。
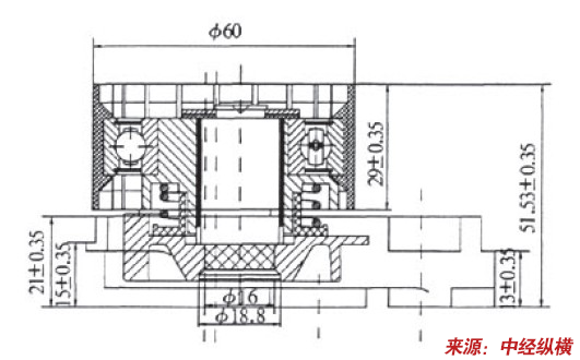
汽油发动机的皮带传动,按其功能作用可分为:正时系统的同步带传动和附件系统的多楔带传动系统。两种系统中所用的常见张紧轮结构简图如下图所示。
图1带安装偏心孔的非自动同步带张紧轮

图2动同步带张紧轮
